Blackburn House_London_Residential_Wohnhaus_Photo_Foto_Interior

TYPOLOGY: Residential

COUNTRY: UK

CITY: London

YEAR: 1987

PHOTOS: © BOLLES+WILSON

No grand statement rather a series of practical opportunities. First the restructuring of the row of rundown Mews Houses into a new white box. A large window breaks through the white façade, the view is not good, the glass is opaque, blinded.

Ground floor office, a two floor apartment housing, a collection; Barry Flanagan (hare), Scott Burton (chair), Andy Warhol (portrait), Bruce McLean (table), Ron Arad (table), Jasper Morrison (sofa). Interior details are added to this list – supporting column and cantilevered balcony in steel, a vitrine, a floating boat – seat – handrail – individual narratives in a limited range of materials.

The upper floor with its 14 m skylight-wall functions as gallery, the lower lobby as chair hall. Sitting on the central barge seat the visitor has reached the vortex of the composition hovering like the house itself, not quite part of London.

Blackburn House_London_Residential_Wohnhaus_Photo_Foto_Interior
Blackburn House_London_Residential_Wohnhaus_Photo_Foto_Interior
Blackburn House_London_Residential_Wohnhaus_Photo_Foto_Interior
Blackburn House_London_Residential_Wohnhaus_Photo_Foto_Interior
Blackburn House_London_Residential_Wohnhaus_Photo_Foto_Interior
Blackburn House_London_Residential_Wohnhaus_Photo_Foto_Interior
Blackburn House_London_Residential_Wohnhaus_Photo_Foto_Interior
Blackburn House_London_Residential_Wohnhaus_Photo_Foto_Interior
Blackburn House_London_Residential_Wohnhaus_Photo_Foto_Interior
Blackburn House_London_Residential_Wohnhaus_Photo_Foto_Interior
Blackburn House_London_Residential_Wohnhaus_Photo_Foto_Interior

CITY:  Tirana

CLIENT:  The Bregu Group

YEAR: 2024 – 2028

LOCAL FACILITATING OFFICE: X-PLAN

A 23 floor residential tower crowned by 5 floors of golden penthouses. It stands between Tirana’s central Skanderbeg Square and the revitalized Bazaar. A back seat to the Prime Minister promoted cluster of mega statements that will line up next to the gold façade of BOLLES+WILSON’s 2025  Intercontinental  Hotel. We have sketched our golden cones against the pink matrix of Tirana’s jumbled DNA, punctuated by two more BOLLES+WILSON planned projects – The Lets Twist Again Tower and in the background the Vasarely Tower. We are grateful to Edi Rama for pumping Bazaar Gate’s original 15 floors to the 28 floors now under construction.

ORIGINAL 15 FLOOR

BAZAAR GATE CONCEPT

WEST ELEVATION - 28 FLOORS
NORTH ELEVATION
SOUTH ELEVATION - 28 FLOORS
EAST ELEVATION
SETBACK REQUIREMENTS DETERMINE PLANS
BAMBOO PRINTED FACADE - RENDERING X-PLAN

FAÇADE EVELOUTION

First came a Bamboo leaf printed pattern. Then in a workshop two façade proposals by X-Plan our Albanian collaborators were mathematically synthesized to produce the window/loggia matrix.

FROM THE SHOPPING COURT

CONCEPT B+W

RENDERINGS X-PLAN

PENTHOUSE REFINEMENT

As with all BOLLES+WILSON projects the penthouses were fine-tuned in an iterative exchange between sketched ambiences/compositions and the exactitude of digital co-ordination/technical requirements. The final, somewhat Chinese, sketch dissolves the golden crown in a nirvana of cloud.

TYPOLOGY: Retail

COUNTRY: German

CITY: Ahlen

YEAR: 2005

COMPETITION: Invited, 1ˢᵗ Prize

GFA: 1.460 sqm

CLIENT: Franz Kaldewei GmbH & Co. KG

PHOTOS: © Christian Richters, © 2024 Walter Knoll

TALE OF THE TUB

Kaldewei are the Mercedes of bath manufacturers. Their robust 3.5mm tubs are formed over an iron mold by robotic arms (the steel screams while being pressed into shape). Tubs are then enameled, the historic but still functioning enamel kiln is glimpsed as the conclusion of the visitor’s trajectory through the new information and exhibition center. Façade planks (wrapping both new visitor facilities, adjacent smelting plant and warehouse) are enameled in the colours used for bathtubs. Entrance is across the paved plan of the original Kaldewei family villa, nearby are terracotta vats used in the nineteenth century for transporting vitreous enamel crystals.

KKC Plan at Ground level - PROMENADE ARCHITECTURAL

The façade Screens - plunging into a tub or choosing a whirlpool bath are discrete activities. The lobby is clad in a cosy mosaic of wooden panels with integrated lights and air outlets. The promenade architectural sequence leads up past a Bizatza tiled shower niche. Below - the wardrobe lurks behind the purple memory of the absent Kaldewei family house.

KKC Plan at upper level -EXHIBITION SALON

Like Carl Andre artworks, bathtub and shower tray designs are clustered in groups of four - spot-lit minimalist sculptures. On the grey salon end-wall are coloured wax circles by artist Gro Luhn. Beyond the salon visitors look down to the firey drama of the enamel kiln.

KKC Plan at lower level – PLUNGE CELLS

Purchasing a luxury whirlpool bath is similar to buying a small car, one demands a test drive or in this case a test bath. Toweling robes are donned in changing pods before progressing to sensuous cells, each with its own gestalt and bath model. Busloads of potential customers arrive from all over Europe engendering interesting sociological observations - Germans each require new bath water while Belgians are happy to sit in the water of the previous bather. Back in the lobby a gallery exhibition of historic bath artifacts was sketched but not realized.

dub house_haus dub_munster

TYPOLOGY: Residential

COUNTRY: Germany

CITY: Münster

YEAR: 1993

PHOTOS: © BOLLES+WILSON

The principal element, a Blue Glazed Brick Wall corrects a disastrous alteration and also breaks the tyranny of uniform ceiling height.

The second added element, a Zinc Clad Studio Box stands adjacent the Blue Wall. The two set up an external and internal play – geometric volumes – the abstract language of the plan respected and developed.

A very modest commission, careful details with the potential of enhancing the everyday lives of their users.

dub house_haus dub_munster
dub house_haus dub_munster
dub house_haus dub_munster
dub house_haus dub_munster
dub house_haus dub_munster

TYPOLOGY: Cultural

COUNTRY: Germany

CITY: Münster

YEAR: 1993

COMPETITION: 1987, First Prize

CLIENT: City of Münster

COLLABORATOR: Harms & Partner (in realization phase)

AWARDS: Mies van der Rohe Award 1995, Nomination
German Architecture Award 1995, Commendation

PHOTOS: © Christian Richters, Julia Cawley (update 2010)

The Münster Library was BOLLES+WILSON’s first major public commission. After more than ten years it remains near the top of Germany’s ‘library-user-ranking-list’. A verification not only of functionality but also of the attention to detail, to spatial multiplicity and to the ambience and atmosphere within.

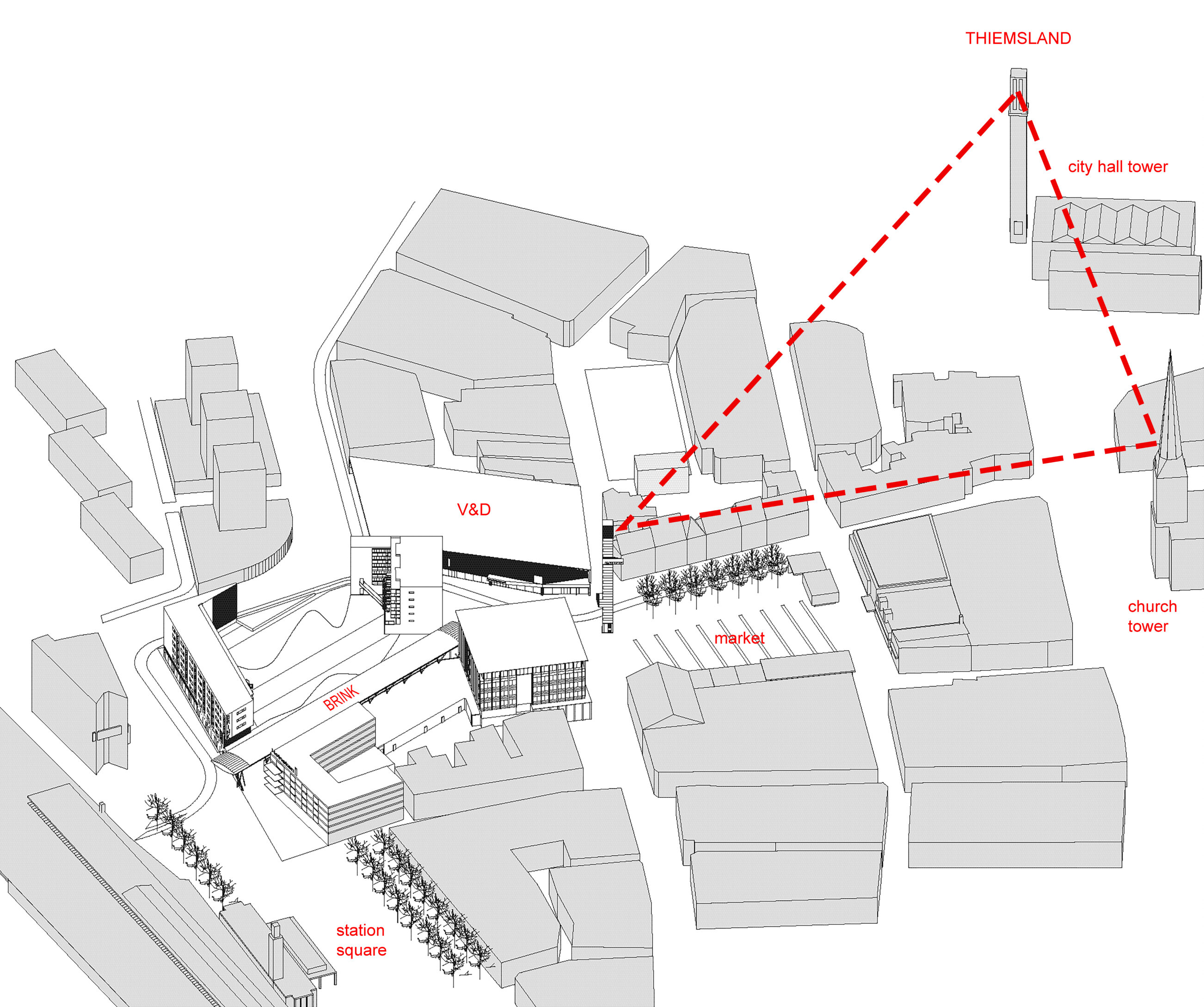
The complexities of the overall building form are derived from internal organisation and from a careful re-constitution of the fragmented context. A new pedestrian street on the axis of the nearby Lamberti Church divides the not inconsiderable mass of the Library. This fissure in the library volume is closed with folded screens (copper outside, acoustically absorbing perforated wood panels within).

A transparent entrance zone (café, newspaper salon) leads via an information supermarket to the main information desk on the connecting bridge. This in turn is adjacent to book stacks in the ship-like outer volume. The atmosphere is quiet, studious. Books line the outer curved wall, a dramatic stair leads down through a 22 m void to the basement media library, which connects in turn to the courtyard facing children’s library and back up to the entrance zone. Up to four thousand users enter the Münster Library on one day.

+ + +

Münster City Library – Update 2010
With a newly painted facade and new automatic check out and 24-hour return automat the Münster City Library in its 18th year remains near the top of the German public library ranking list.

Stadtbücherei Münster, City Library, Exterior, main entrance, Eingang
Stadtbücherei Münster, City Library, Exterior
Stadtbücherei Münster, City Library, Exterior, Christian Richters
Stadtbücherei Münster, City Library, Julia Cawley, Interior
Stadtbücherei Münster, City Library, Christian Richters, Interior
Stadtbücherei Münster, City Library, Julia Cawley, Exterior, Buchrückgabe
Stadtbücherei Münster, City Library, Interior, meeting room
Stadtbücherei Münster, City Library, Christian Richters, Interior
Stadtbücherei Münster, City Library, Christian Richters, Interior
Stadtbücherei Münster, City Library, plan, Grundriss, 1. Etage, 1st floor
Stadtbücherei Münster, City Library, plan, Grundriss, 1. Etage, 1st floor
Stadtbücherei Münster, City Library, Exterior, elevation, Ansicht, Fassade
Stadtbücherei Münster, City Library, Exterior, section, schnitt
Stadtbücherei Münster, City Library, Exterior, section, schnitt
Stadtbücherei Münster, City Library, Exterior, isometry, isometrie
Stadtbücherei Münster, City Library, Isometrie, Exterior